144 Albion Street, Southwick, Brighton
Property Features
- Available on new lease/ licence
- 2x car parking spaces
- Sea Views
Property Summary
Rental £12,000 PAX
Full Details
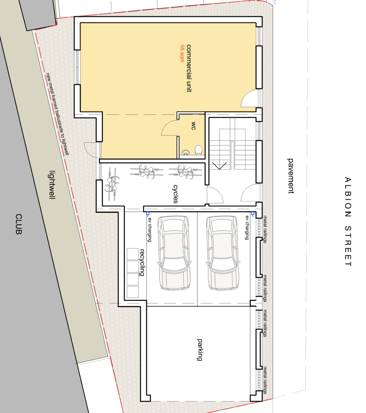
The property is a newly constructed self-contained office suite, with W.C excellent natural light and comes with two off road parking spaces. Open plan unit with ample power points, LED lighting, W.C and Kitchenette space.
Great opportunity for a new or expanding business looking for a well presented commercial space.
Location
Located on South side of Albion Street, Southwick the property links directly onto the main A259 trunk road and is a short walk to Southwick railway station offering direct routes to Brighton/ London.
Viewings
Viewings can be arrange via landlords sole agent - Newlands Propety
Terms
Available on a new lease / licence with terms to be agreed, asking rental £12,000 per annum exclusive.
Available Area
| Name/Floor | Sq Ft | Sq M | Rent | Availability |
|---|---|---|---|---|
| g | 592 | 55 | On Application | Available |










