52 Ashdown Road, Worthing
Property Features
- Fully Let
- Producing £65,100pax
Property Summary
OIEO £710,000 FH
Full Details
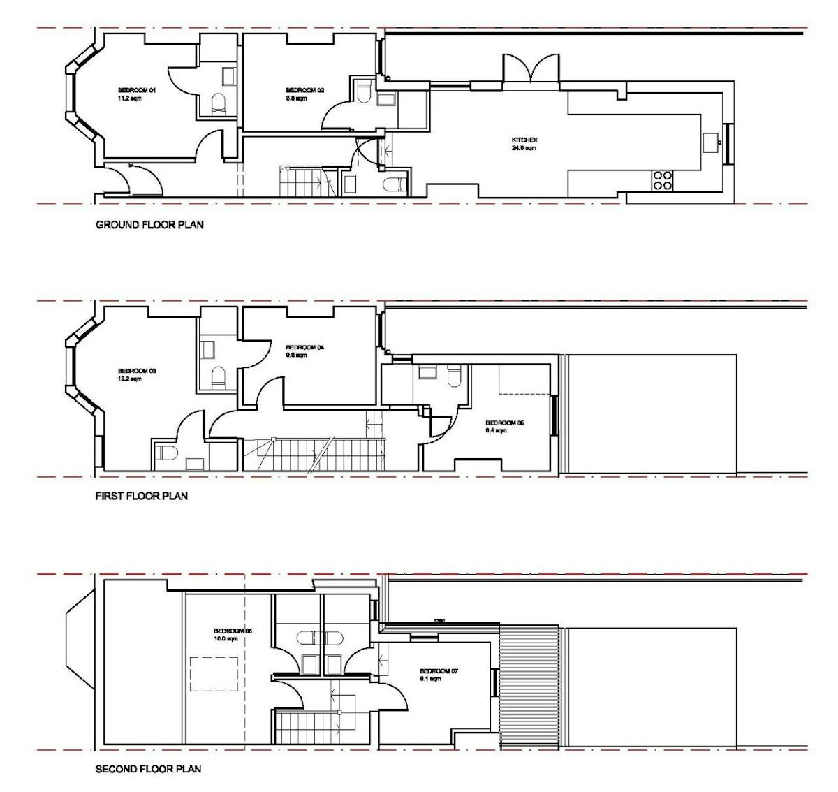
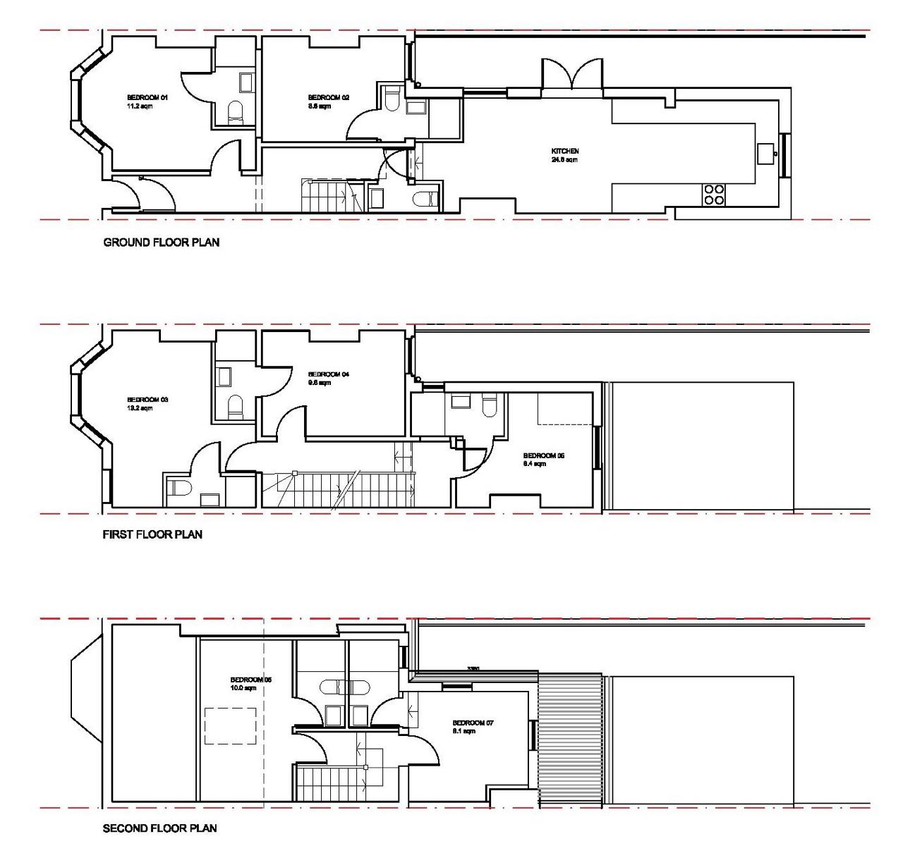
The property comprises of a mid terrace brick built building, the property was completely refurbished in 2023 and comprises of 7x bedrooms all en-suite over 3 floors with spacious kitchen area.
Internally the flats benefit from carpeted flooring with ample electrical sockets, double glazed windows and
adequate lighting. The en-suite facilities have vinyl flooring with WC, sink and showers. Included within the monthly rent is electricity, water, gas, cleaning of common parts, & Wi-Fi usage.
Each flat has access to an open plan kitchen which is furnished to a high standard, externally to front there is a small garden whilst at the rear there is a small courtyard.
Location
Located in Ashdown Road in the heart of Worthing Town Centre., Ashdown Road is situated at the northern end of the Town close the the large Morrisons supermarket whilst also being a short walk away from the major shopping & leisure streets of Montague Street, Warwick Street and South Street.
Viewings
Viewings can be arranged by the Vendors Sole Agent - Newlands Property
Terms
OIEO £710,000 for the freehold interest subject to the existing tenancies in place.
Running Costs
Current monthly running costs are circa £700pcm. These costs include cleaning of the common parts, insurance, broadband, utilities and Council Tax. Further information is available upon request.
Planning
Planning was granted in April 2024 under reference number AWDM/0129/24 for a change of use from small house in multiple occupation (C4) to a large house in multiple occupation (sui generis). Further information can be obtained from visiting or contacting the Local Planning Authority
Available Area






